Skip to main content

Overview

Victoria Park is one of Dubbo’s regional parks and the aging public amenities, constructed in 1975, are outdated and no longer meets current standards or expectations.

In line with our Delivery Program and Operational Plan Council will be undertaking the replacement of the amenities after securing $403,486 from the NSW Government. The new amenity block will be modern and provide safe and compliant facilities to the visitors to the park. The new amenities will complement the new playground and exercise facilities for many years to come.

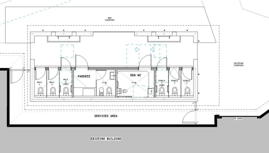
Construction is now underway on the western side of the Dubbo Aquatic Leisure Centre to deliver more accessible and family-friendly facilities for our community. This upgrade includes a fully compliant accessible toilet and a new parent’s room to better support people of all abilities and carers. The building has been designed to be durable, easy to maintain and environmentally responsible. It will make use of natural ventilation, water-saving fixtures and high-level openings to reduce energy use and brighten the space. Materials have been chosen for longevity, and the design also allows for future improvements, including the option to add solar power.


Key features

  • Single‑storey amenities building, approx. 12m x 5m footprint
  • WC cubicles
  • Parent’s room
  • Accessible toilet
  • Services area
  • Common walkway with basins

The new facilities are expected to be ready by late April 2026.


Design details

An architectural plan of the amenities block

Artist Impression

Location of amenities block

Provide a short summary of your question.

You have 150 characters left

Provide detailed information relating to your question.

You have 500 characters left

Select a respondent from the list that you would most like to answer your question.

Moderation Policy

These are the people that are listening and responding to your questions.

Manager Recreation and Open Spaces

Dubbo Regional Council

(02) 601 4000

Engagement & Customer Insights Team

Dubbo Regional Council

(02) 6801 4000

{{ question.username }} asked

{{question.description}}

{{ answer.respondent.name }}
| Edited

Answer this question

Select the respondent who will be marked as answering the question

Provide the answer to the question. Answer can be saved as draft and published when complete.

No questions found



Contact Us

Contact Information
Phone (02) 6801 4000
Website www.dubbo.nsw.gov.au
In writing

P.O. Box 81
Dubbo NSW 2830

Social Media